昨天文章里面有一张铸铝端板的照片,由于是以前在网上找的,发文时候找不到厂家,没有备注来源就发出来了,结果被端板厂家宁波谷鼎新能源发现了,好囧!

也好,既然找到了原厂,就可以伸手要端板资料了,结合着电芯,咱们来看看他们这一款280Ah的具体端板吧。
一、储能端板标准化
实际上在写文章,寻找端板样式素材时,就发现280Ah的端板很多,基本是标准化产品了。
280Ah 电芯是中大型储能的主流电芯之一,当前各家280Ah 电芯(以磷酸铁锂体系为主)的外形尺寸差不多一致,而且极耳位置、防爆阀布局等差异也很小。

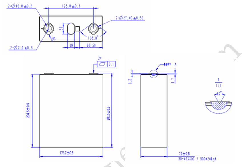
图片来自:亿纬280Ah电芯手册
端板的核心功能是固定电芯、传递载荷,其结构依赖电芯,尺寸一致就可以把端板做成标准产品了。
二、280Ah端板设计
端板的尺寸是主要按照电芯尺寸,再加上轻量化和装配需要进行设计的。

上面280Ah的磷酸铁锂电芯尺寸:厚度 72±0.5mm;宽度 173.7±0.5 mm; 高度 207.5±0.5mm;
储能端板具体设计的尺寸如下:

长度:175±0.5mm,比电芯173.7±0.5 mm多1.3,可以覆盖电芯大面;
高度:185±0.5mm,其中平面高度171.7±0.5。比电芯高度低(207.5±0.5mm),顶部和底部各预留余量,且便于与模组的上下盖板的连接;
厚度:外围20±0.2 mm,内部铸造厚度2.5,减重凹槽是为了减重;

关键孔位设计:
螺丝孔:在端板长度方向的两端,距边缘 10.5mm 处,各开设 2 个 M6 螺纹孔,用于固定端板,并与模组的侧板连接;
定位孔:在高度方向的中间位置,距顶部、底部 45mm 处,开设有 2 个 Φ6.5 的定位孔,用于模组装配时定位。
三、储能压铸端板质量要求
1、材料要求:
端板材质为A380,主要材料含量:硅含量 7.5%-9.5%、铜含量 3.0%-4.0%,铝为余量;其成分应符合ASTM B85-03的规定。
2、材料力学性能:
A380铝合金需满足ASTM B85-2003 《铝合金压铸件标准规范》的力学要求,主要指标如下:
抗拉强度:≥320MPa;
屈服强度:≥160MPa;
伸长率:≥3%(50mm 标距,典型值 3%-5%);
硬度:≥80HB(布氏硬度,典型值 85-95HB);

模组成组完成后,需进行膨胀力仿真,校核端板受到的最大应力值是否小于铸铝材料力学性能。
3、内部缺陷要求:
铸件内部气孔大小和数量,需满足ASTM-E505《气孔和铸件质量要求》标准。
采用X射线方式对端板进行气孔缺陷探测如下图。

3、外观质量:
铸件不允许有裂纹、欠铸、疏松、气泡及任何穿透性缺陷,以及擦伤、凹陷、缺肉和网状毛刺等缺陷;
铸件需经抛丸处理,处理后零件表面粗糙度 Ra 值不超过12.5μm。
端板的电芯安装面:平面度要求≤0.5mm,确保与电芯表面贴合。

4、端板强度试验
按 100N/s 速率匀速施加压力至设定值(根据电芯承受值),比如:压力值≧25000N之后,对每组端板单独测量变形量。
试验后测量端板平面变形量(要求≤0.3mm),目视检查无裂纹、无断裂,螺纹孔处无滑丝、无崩牙,即判定强度合格。

四、动力电池端板可靠性测试
若端板应用于动力电池领域,因车辆行驶过程中承受振动、冲击、温度循环等工况,需进行以下电池包或者模组级别可靠性测试:
1、振动测试:
依据 GB/T 31467.3-2015 标准,采用正弦波 + 随机波复合加载模式,频率范围 5-2000Hz,加速度 10-20g,在 X、Y、Z 三个方向分别测试,每个方向测试时间≥24h,测试后端板无裂纹、无变形,螺纹孔无滑丝;
2、冲击测试:
依据 ISO 12405-3 标准,分别进行半正弦波冲击与方波冲击,X、Y、Z 三个方向各冲击 3 次,测试后端板与电芯的连接无松动,结构无破损;
3、温度循环测试:
在 – 40℃~85℃的温度区间内循环,每个循环包括升温(1℃/min,85℃保温 2h)、降温(1℃/min,-40℃保温 2h),共进行 100 个循环,测试后端板无开裂、无涂层脱落;
4、盐雾测试:依据 GB/T 10125-2021 标准,进行中性盐雾测试(5% 氯化钠溶液,温度 35℃,湿度 95%),测试时间≥48h,金属端板涂层无锈蚀、无剥落。
特别感谢:宁波谷鼎新能源有限公司提供的大力支持

